1100: Architektonisches Juwel über den Dächern Wiens
DIE WOHNUNG
In dieser außergewöhnlichen Dachgeschossmaisonette verbindet sich modernes Design mit Wiener Wohnkultur auf höchstem Niveau.
Die Maisonette wurde umfassend saniert und mit einem kompromisslosen Anspruch an Ästhetik, Qualität und Lichtwirkung gestaltet.
Große Dachflächenfenster, Fischgrätparkett, matt-schwarze Küchenfronten und freischwebende Stufen schaffen eine Atmosphäre, die an ein architektonisches Loft erinnert – elegant, ruhig und zugleich wohnlich.
Das offene Raumkonzept erstreckt sich über zwei Ebenen und vereint klare Linien mit warmer Behaglichkeit. Der großzügige Wohn- und Essbereich öffnet sich über große Fensterflächen Richtung Himmel – mit direktem Zugang zu Balkon und Velux-Cabrio-Fenstern, die Licht und Luft in den Wohnraum holen.
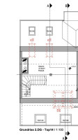
Raumaufteilung:
Untere Ebene (Eingangsbereich mit Liftzugang):
- großzügiger Vorraum (9,11 m2)
- modernes Badezimmer mit freistehender Wanne, Regendusche und Echtglasverglasung (5,85 m2)
- separates WC (1,16 m2)
- Schlafzimmer (15,27 m2) mit Zugang auf den Balkon (4,40 m2)
- daran anschließendes Kinder-/Arbeitszimmer/Luxusschrankraum (15,06 m2)
- Designküche mit dunklen Fronten, goldenen Akzenten und durchdachter Stauraumlösung und Essplatz (28,75 m2)
Über eine anscheinend frei schwebende Treppe gelangt man auf die obere Ebene mit offenem Wohn- und Essbereich, spektakulärem Lichteinfall und Velux-Cabrio-Fenstern als zusätzlichem, kleinem Balkon mit Blick über die Dächer (41,64 m2).
Geheizt wird mit mit Gasetagenheizung.
Ein Kellerabteil steht zur Verfügung.
Fazit: Ein architektonisches Juwel über den Dächern Wiens:
Diese Maisonette vereint Großzügigkeit, Licht und zeitloses Design zu einem einzigartigen Wohngefühl.
Ideal für alle, die das Besondere suchen – mit Stil, Qualität und unverwechselbarer Atmosphäre.
DIE AUSSTATTUNG
- edler Fischgrät-Vollholzparkett
- Klimaanlage
- elektrische Fußbodenheizung in Bad und Vorraum
- hochwertige Einbauküche mit Markengeräten
- dimmbares Lichtkonzept mit stimmungsvoller Beleuchtung
- Velux-Fenster mit Beschattung und Verdunkelung
- Lift im Haus
- optionale Möblierung mit hochwertigem Designinterieur
DIE LAGE
Die Wohnung befindet sich in gefragter Stadtlage in der Nähe des Wiener Hauptbahnhofs (internationale Bahnverbindungen und diverse Straßenbahnen und Busse) und des Reumannplatzes (U1) – mit perfekter Anbindung in alle Richtungen. Straßenbahn (O, 6, 11), U-Bahn (U1) und Schnellbahnen sind in wenigen Minuten erreichbar.
Im Sommer lockt der Eissalon Tichy in Fußgehweite zu einem süßen Ausflug, sommers wie winters lädt das Jugendstilbad „Amalienbad“ zu Sport und Wellness ein.
Zahlreiche Einkaufsmöglichkeiten, Cafés, Restaurants und Grünanlagen befinden sich in direkter Umgebung.
SONSTIGES
Bitte geben Sie bei Anfragen Ihren vollen Namen und Ihre Telefonnummer bekannt.
Provisionspflichtiger Verkauf – Provision beträgt 3% des Kaufpreises zuzüglich 20% Ust.
